Doppelhaus Typ "A"
nach WoFlV. zus. 109,8 qm Wohn- und Nutzfläche, Außenmaße 6,59 m
x 10,74 m, überbaute Grundfläche 70,8 qm,
Kurzcharakteristik / Besonderheiten: Variante mit Putzfassaden, Dachneigung
45°,
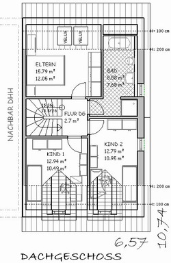
Dachgeschoss: Eltern-Schlafraum mit Dachflächenfenster, 2 Kinderzimmer
jeweils mit Giebelgaube (oder alternativ gemeinsamer Spitz-(Dreieck-)Gaube,
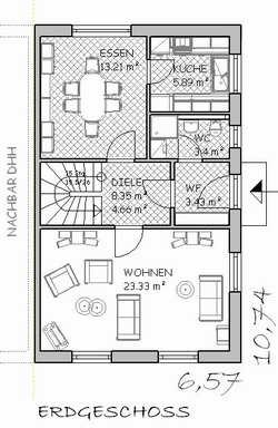
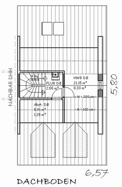
vollwertige feststehende Treppe zum Dachbodenraum (Abstellraum/HWR/HT);Erdgeschoss: Hauseingang über die jeweilige Giebelseite, Windfang, EG-WC mit zusätzl. Duscheinrichtung, Essplatz im Bereich der Küche an der dem Garten zugewandten Gebäudeseite, 1/2-gewendelte Treppe zentral und mittig im Gebäude;
Erdgeschoss-Grundriss |
Erdgeschoss-3D-Visualisierung |
Dachgeschoss-Grundriss
|
Dachgeschoss-3D-Visualisierung |
Dachgeschoss-Grundriss
(alternative Gaubenform)
Variante "Spitz-/Dreieck-Gaube" |
Dachgeschoss-3D-Visualisierung
|
Dachboden-Grundriss |
Dachboden-3D-Visualisierung |

Gartenseite

Giebelseite (Hauseingang)

Strassenseite (Zugang/Zufahrt)

Strassenseite
