Doppelhaus Typ "B"
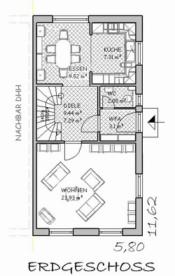
nach WoFlV. zus. 109,3 qm Wohn- und Nutzfläche, Außenmaße 5,82 m
x 11,62 m, überbaute Grundfläche 67,6 qm,
Kurzcharakteristik / Besonderheiten: Variante mit Putzfassaden, Dachneigung
45°,
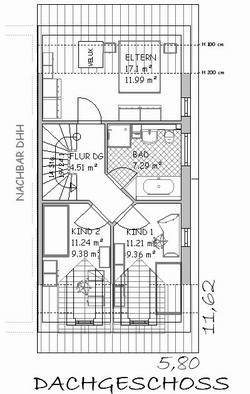
Dachgeschoss: Eltern-Schlafraum mit Dachflächenfenster, 2 Kinderzimmer
jeweils mit Giebelgaube (oder alternativ gemeinsamer Spitz-(Dreieck-)Gaube,
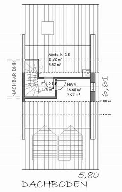
vollwertige feststehende Treppe zum Dachbodenraum (Abstellraum/HWR/HT);Erdgeschoss: Hauseingang über die jeweilige Giebelseite, Windfang, Gäste-WC, offene Küche mit großzügigem Essplatzbereich an der dem Garten zugewandten Gebäudeseite, zum Essplatz hin offene Diele mit 2-fach 1/4-gewendelte Treppe;
Erdgeschoss-Grundriss |
Erdgeschoss-3D-Visualisierung |
Dachgeschoss-Grundriss |
Dachgeschoss-3D-Visualisierung |
Dachboden-Grundriss |
Dachboden-3D-Visualisierung |

Gartenseite

Giebelseite (Hauseingang)

Strassenseite (Zugang/Zufahrt)

Strassenseite

Giebelseite