Doppelhaus Typ "C"
nach WoFlV. zus. 112,4 qm Wohn- und Nutzfläche, Außenmaße 5,82 m
x 11,62 m, überbaute Grundfläche 67,6 qm,
Kurzcharakteristik / Besonderheiten: Variante mit Putzfassaden, Dachneigung
45°,
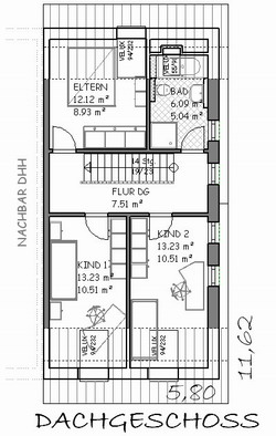
Dachgeschoss: Eltern-Schlafraum mit tiefreichendem Dachflächenfenster, 2
Kinderzimmer jeweils mit tiefreichendem Dachflächenfenster, vollwertige
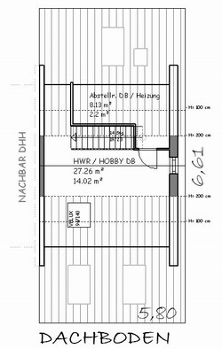
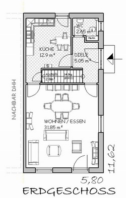
feststehende Treppe zum Dachbodenraum (Abstellraum/HWR/HT);Erdgeschoss: Hauseingang über die jeweilige Giebelseite, Gäste-WC, Küche mit Essplatzbereich an der dem Garten zugewandten Gebäudeseite, gerader Treppenlauf, Abstellraum unter der Treppe, großzügiger Wohnraum mit Essplatz und jeweils direktem Zugang von der Diele bzw. von der Küche;
Erdgeschoss-Grundriss |
Erdgeschoss-3D-Visualisierung |
Dachgeschoss-Grundriss |
Dachgeschoss-3D-Visualisierung |
Dachboden-Grundriss |
Dachboden-3D-Visualisierung |

Gartenseite

Giebelseite (Hauseingang)

Strassenseite (Zugang/Zufahrt)

Strassenseite
Gartenseite/Giebelseite